Khandallah

powered by Open2view.com
SOLD

Auckland
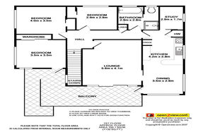
6
2
N/A
200sqm
675sqm
Auckland
proudly marketed by
Five AM Realty Ltd
A Home For Every Man And His Dog This big brick home will fit all of your children, your Mum & Dad and your dog! Lots of rooms - a space for everyone. Extremely light and sunny upstairs with HRV to cool you in summer and make you snug in winter. Walking distance to St Kents - an ideal home to get boarders in to help pay the school fees. You also have great options for education with good local public schools. You have a wonderful choice of shopping areas and recreational facilities. Boaties - plenty of room around the back for your pride and joy and an easy drive to launch it at the Half Moon Bay Marina. Even two families could share this home and share the mortgage and still be independent of each other. Renovators - add value by modernising or convert to a home and income. The vendors found it perfect for their large family with the downstairs area providing independence for their older children. The vendors say "We are on the market to sell and highly recommend it to large families or maybe to two families who want the area and can share the mortgage" On 675m2, see it now!
Question
Upload by John Gin - South AK
Auckland South/East
This property was photographed by
John Gin - South AK
021 252 2413