Khandallah

powered by Open2view.com
SOLD

Wellington
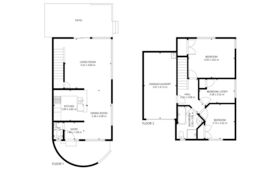
3
1
N/A
122sqm
178sqm
Wellington
Auction
Wednesday 18th November - 12:00PM
8 Kent Terrace, Wellington
proudly marketed by
Lowe & Co Realty
Set and ready to go...
* DEADLINE BROUGHT FORWARD TO 5PM MONDAY 16TH NOVEMBER 2020 * Move in and enjoy this private, beautifully presented, well-appointed townhouse nestled in a quiet sunny location with lovely views to the north and west. A practical townhouse of: - Three bedrooms - 2 doubles + 1 single - Open plan living, dining and kitchen with doors opening to deck area for sunny alfresco dining - Practical kitchen - Separate toilet on living level, bathroom with bath shower and toilet on bedroom level - Drive on to single garage - A freehold (fee simple) titled property so no body corp to worry about! - Close to schools, public transport at door - Secure and private - BEO $690,000 This townhouse is a real cracker! Call Murray or Sam for immediate viewing. This just won't last long. LIM Report and Building Inspection Report ordered. Deadline sale closes (unless sold prior) 12pm, Wednesday 18th November 2020, 8 Kent Terrace, Wellington During Level 1 Lowe & Co Realty will be practising safe workplace guidelines as issued by REINZ.
Question
Please leave this field blank:
Upload by David Garratt
Wellington Central/North