Khandallah

powered by Open2view.com
SOLD

Wellington
2
1
N/A
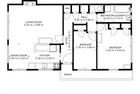
90sqm
N/Asqm
Wellington
Auction
Monday 29th June - 12:00PM
Harcourts Khandallah - 6 Dekka Street, Khandallah (not selling prior)
proudly marketed by
Lowe & Co Realty
Perfect Opportunity!
This is a rare opportunity that does not come along very often. Our owner has loved living in this bright, single level home for the last 27 years. Situated in the ever-popular area of Ngaio, very close to the train station, bus stop and local shops, the location really couldn't be better. Elevated with views looking over the North Western hills, large windows bathe the open plan kitchen, dining and lounge area in warm sun. With ample storage in the hallway and 2 decent sized bedrooms this home really is a nice surprise. Suited to first time home buyers, downsizers, or investors this home will appeal to many. This really is a cracker of an opportunity, so do not delay and contact Sam or Murray to arrange a private viewing or pop along to one of our open homes. Pre Purchase Builder and LIM reports available For sale by tender. Tender closes Monday 29 June 2020 at 12pm (NOT selling prior) RV $500,000
Question
Please leave this field blank:
Upload by David Garratt
Wellington Central/North